fbpx Façade verre intégrale | RDMETAL - Bureau technique, construction métallique

Façade verre intégrale

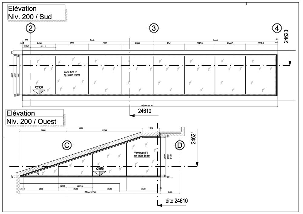
Pour ce chantier la transparence était fondamentale avec des verres toute hauteur autoportants. Cela a permis de créer un espace ouvert sur l’extérieur aux dimensions exceptionnelles.
Verres fixés dans un profil aluminium couplé directement en atelier avec la tôlerie de finition, vissé sur une sous-construction en acier linéaire pour les reprises de charge des verres. La façade principale compte 62 verres pour une longueur totale de 170 mètres. Les façades secondaires tout verre sont également autoportantes avec l’intégration des portes à 1 vantail et des portes automatiques.
Réalisation des plans d’approbation, d’exécution, de production, d’assemblage, ainsi que les plans des verres et montage avec Athena.